本文へスキップ

中古マンションの価値を高めるリフォームを行っています。[デザイナーズマンション・デザイナーズ投資マンション]

TEL. 070-4190-9065

〒464-0062 名古屋市千種区向陽町2-16-208

リノベーションRENOVATION

リノベーション実例集

自社物件の中古マンションをリフォームされたい方、所有されている中古マンションをリノベーションしてより価値を高めて売却刺されたい方、ご自身のマンションをリノベーションされたい方など、あらゆるニーズにお応えします。お気軽にご相談ください。

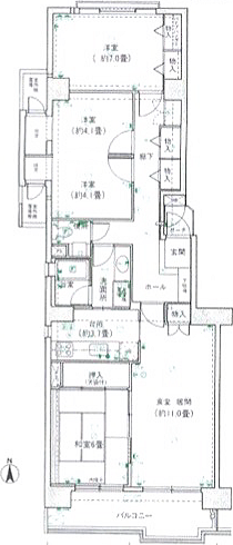
中古マンション【区分所有】

【名古屋市西区鳥見町】  1985年築 RC 15階建て:13階 3LDK(88平米)
BEFORE AFTER
キッチンが独立した昔ながらの間取りで、押し入れがキッチンの手前にありました。 押入れを撤去して、カウンター付きのオープンキッチンにしました。
もともと和室だった部屋を洋室に変えているので天井が低く、大きな押し入れがありました。 カウンター付きのオープンキッチンにすることでダイニングとキッチンがつながり生活動線が向上しました。
システムキッチン自体はリフォームされたばかりでまだ比較的新しかったのですが、昔ながらのキッチンが独立しているクローズドキッチンだったため、照明を付けないと暗く、閉塞感や孤独感がありました。 壁の一部を撤去し、セミオープン型のキッチンにすることで開放感を得ることが出来、必要な部分は隠せるという一石二鳥の間取りにしました。また、水栓をデザイン性の高い「スットシングルワンホールスプレー混合水栓」にしたことで、水栓周りが洗練された印象になりました。
くすんだ花柄のクロスが張られた暗いイメージのトイレは、便器もくすんだ薄ピンク色で全体的に汚い印象でした。 高級感のあるヘリンボーン柄の床にしました。壁は、下半分にグレーのモルタル調のクロスをに貼り、上半分は狭いトイレの空間に広がりをもたせるためにホワイトのクロスを貼り、トイレも真っ白な便器に変えました。
昔ながらの古い手洗いカウンターがありました。 ワンランク上のお洒落な白陶器手洗いカウンターに変えました。
キッチンが独立した昔ながらの間取りで、押し入れがキッチンの手前にありました。 押入れを撤去して、カウンター付きのオープンキッチンにしました。
可愛らしいピンクの内装のバスルーム シックなブラック・グレー・ホワイトを基調としたモダンなユニットバスに変更しました。
全体的にダークなカラーが多く使われた暗い印象の玄関と玄関ホール ホワイトを基調とし、明るく広々とした印象になりました。
小さなシューズボックスと鏡があるだけの殺風景な玄関ホール 大理石調の土間を抜けた玄関ホールには飾り棚と大きな全身鏡を設置しました。
充実した廊下収納は魅力的ですがダークブラウンの扉が並び圧迫感がありました。 ホワイト調の木目のフローリングに合わせて、ドアや収納扉をホワイトにすることで、明るい廊下になりました。
使い勝手の悪い廊下収納 使い勝手の良い稼働棚を設置しました。
8.2畳の洋間(※もともと2部屋だった洋室の壁を撤去されていました。) 4.1畳づつ2部屋に分けて、白を基調とした明るい洋室にしました。
7畳の洋室 白を基調とした明るい洋室にしました。
キッチン、リビング、ダイニングがそれぞれ独立していました。 LDKを一体化することで22畳以上の家族がゆったり過ごせるスペースが確保できました。

バナースペース

中古物件の価値を高めるリノベーション


すまいりい株式会社

〒464-0062
愛知県名古屋市千種区向陽町2-16-208

メールでのお問い合わせ

不動産すまいりい公式インスタグラム